£900,000
Maxwelton Close, London, NW7
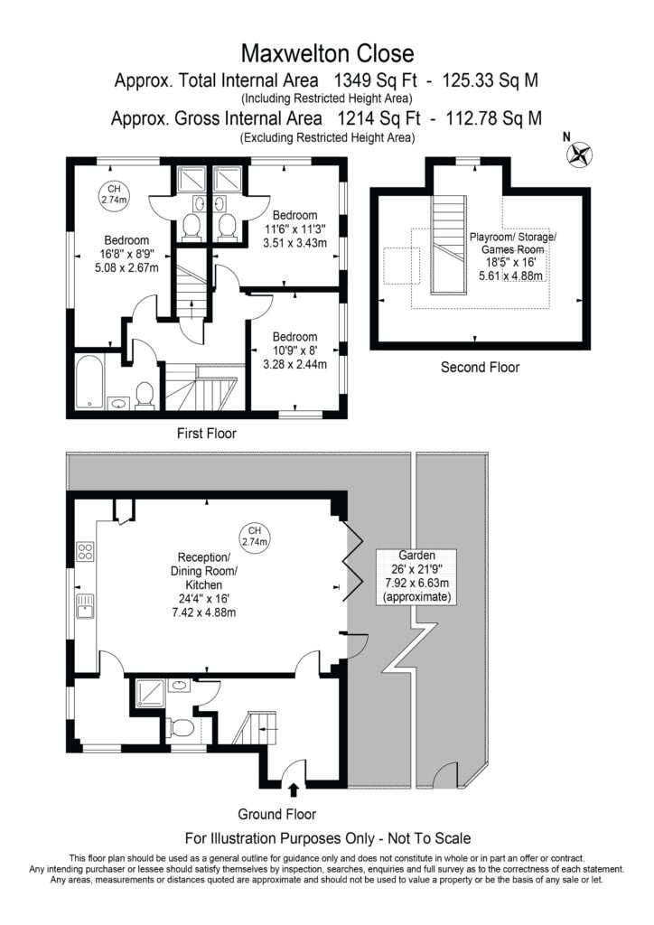
Full description
Immediately available is a beautiful brand new build three bedroom, three shower room one bathroom(3 en-suite) detached house set over three floors and situated within a private gated development of just 4 new houses located to the foot of a residential cul-de-sac.
The house offers wonderful natural light with multiple aspects, contemporary bathrooms, kitchen with built in appliances to include induction hob/oven, fridge freezer and washing machine and triple glazed windows. Situated off the kitchen is a very useful space with potential for a utility room or pantry if wanted. The top floor loft area provides great flexibility and offers storage or play room. There is a super rear garden via full width bi-folding doors with both a patio and laid to lawn area, and this home has the added advantage of 2 allocated parking bays, and an intercom system linked to the gate with video view.
Within the locality are a selection of popular local schools including Mathilda Marks Kennedy (age 3-11), Deansbrook Junior School (age 7-11), and Mill Hill County High School (age 11-18). Mill Hill Broadways shops and Thameslink Station can be found within 0.6 of a mile providing great access into the city. In addition there are excellent road links including the M1 motorway and A1 to the North.
These homes offer a rare opportunity to own a brand new house!- Viewing strictly by appointment!
Tenure: Freehold
EPC:B
The council tax has not been set up as these are vacant new properties
Features
Chain free
New build house
Triple glazed
Four bedrooms
Parking
Gated development
Great schools and teansport links
10 year structural defect warranty
Like the look of this property?
What's Nearby?
Try one of our useful calculators...
Stamp duty calculator
Mortgage calculator


















