Full description
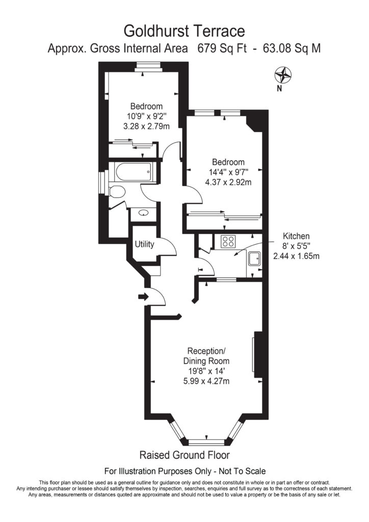
Accessed via an immaculate communal entrance hallway with beautiful feature flooring is an impressive two double bedroom raised ground floor apartment forming part of a grand and handsome period detached house.
Offering tremendous natural light and high ceilings, the apartment is located on a wide residential street forming part of the ever popular and sought after South Hampstead area.
The property offers a wonderful main reception/dining room to the front aspect enjoying a high ceiling giving a light and airy feel, an angle bay with large windows aiding the natural light and fireplace as a period style feature. The Kitchen is semi open plan ideal for social interaction, is fitted with granite worktops and built in appliances. To the rear are two excellent bedrooms with built in wardrobes enjoying peaceful views of neighbouring gardens and a contemporary stylish bathroom with modern sandstone colouring and with a window providing its own light. Off the hallway is a very useful and rare to find utility room also providing added storage.
A fantastic network of multiple train links can be accesses at Finchley Road station (0.5 of a mile), South Hampstead station (0.2 of a mile), and the three stations in West Hampstead (0.7 of a mile). In addition a huge selection of amenities and shops are available to include restaurants, cafes, coffee houses and supermarkets on both Finchley Road and West End Lane in West Hampstead.
The property has the additional benefit of being recently redecorated and is now ready to move into and enjoy. Offered chain free and with a share of the freehold, this is one to be viewed without delay!
Term: Share freehold 999 years from Jan 2020 (993 years)
Ground rent: Peppercorn
Service Charge: Circa £1660 pa
EPC rating :D
*N.B the furniture has been added vis CGI and is not included in the sale/purchase of the property.
Features
High Ceilings
Chain Free
South Hampstead Conservation Area
Great Natural Light
Multiple train and transport links
Share of Freehold
Like the look of this property?
What's Nearby?
Try one of our useful calculators...
Stamp duty calculator
Mortgage calculator







