£700,000
Maxwelton Close, London, NW7
Full description
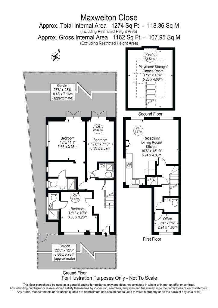
Immediately available is a beautiful cream and red bricked brand new build three bedroom, three shower room (all en-suite) detached townhouse set over three floors and situated within a private gated development of just 4 new houses located to the foot of a residential cul-de-sac.
The house offers the 3 bedrooms to the ground floor, wonderful natural light with multiple aspects, contemporary bathrooms, kitchen with built in appliances to include induction hob/oven, fridge freezer and washing machine and triple glazed windows. To the first floor is a study, a guest toilet, and the top floor loft area provides great flexibility and offers a storage or play room with Velux windows onto a Juliet balcony. There is a super rear garden with both a patio and laid to lawn area, an allocated parking bay outside the front and an intercom system linked to the gate with video view.
Within the locality are a selection of popular local schools including Mathilda Marks Kennedy (age 3-11), Deansbrook Junior School (age 7-11), and Mill Hill County High School (age 11-18). Mill Hill Broadways shops and Thameslink Station can be found within 0.6 of a mile providing great access into the city. In addition there are excellent road links including the M1 motorway and A1 to the North.
These homes offer a rare opportunity to own a brand new house!- Viewing strictly by appointment!
Tenure: Freehold
EPC:B
The council tax has not been set up as these are vacant new properties
Features
New build house
Triple glazed
Three Bedrooms
Parking
Gated development
Great schools and transport links
Chain free
10 year structural defect warranty
Like the look of this property?
What's Nearby?
Try one of our useful calculators...
Stamp duty calculator
Mortgage calculator
















